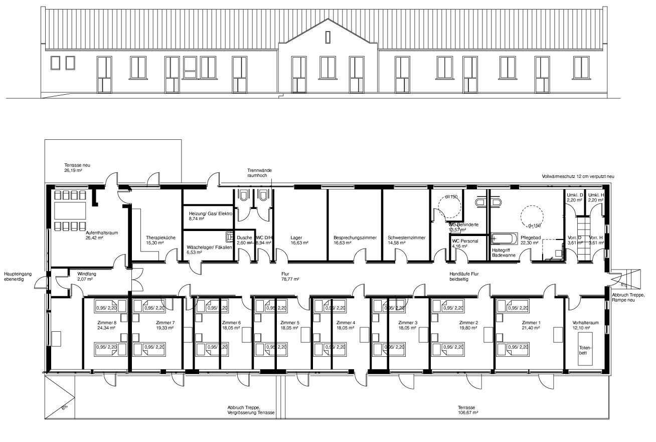
Das Carolinenhaus

Das Carolinenhaus befindet sich im südlichen Schlosspark. Es gibt eine separate Zufahrt, die über die Altenweddingerstraße genutzt werden kann.

Der Blick vom Carolinenhaus ist einmalig.

 

Aktueller Stand